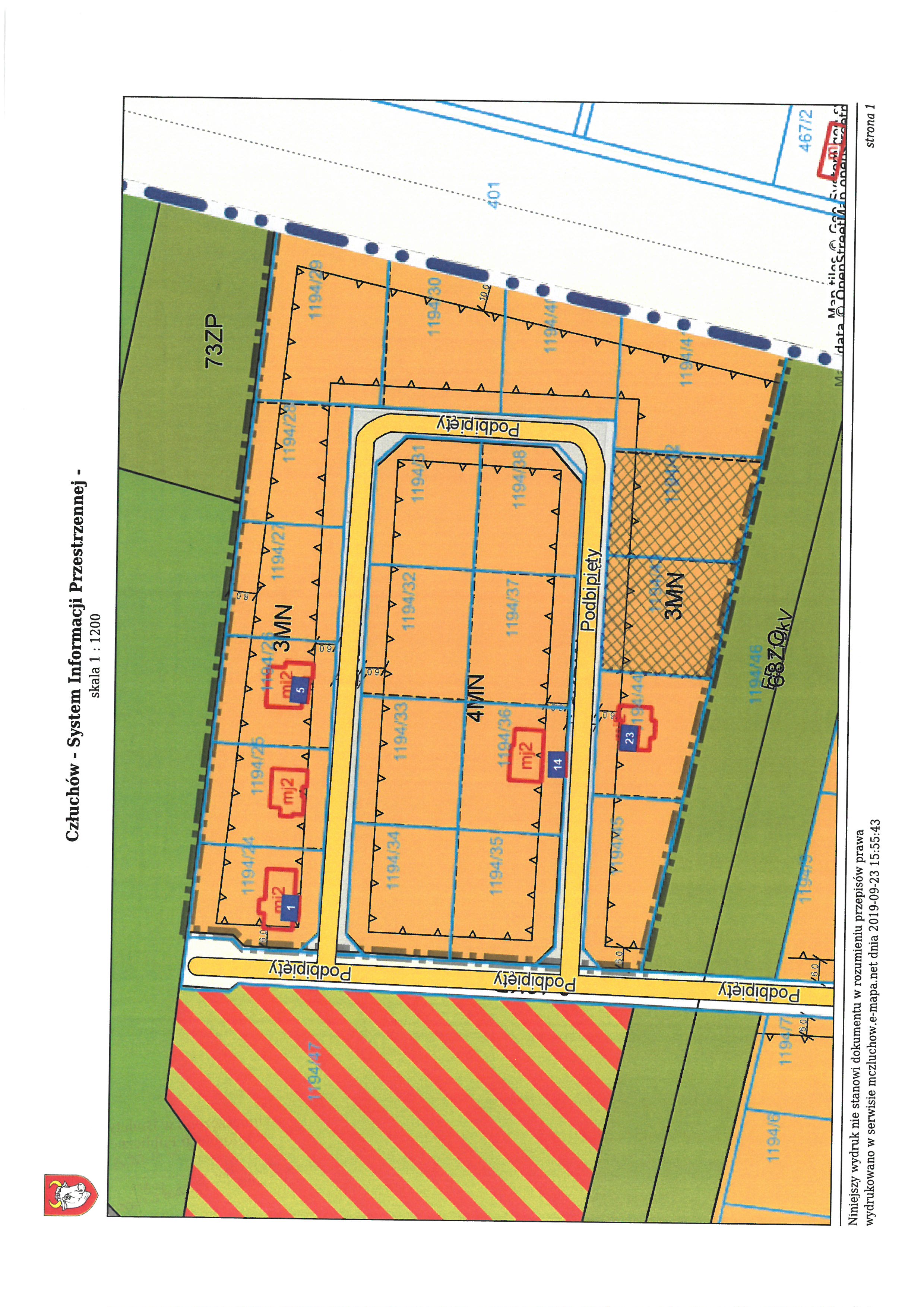
Burmistrz Miasta Człuchowa ogłasza II przetarg ustny nieograniczony na sprzedaż działek pod budowę, położonych w Człuchowie przy ulicy Podbipięty
- działka nr 1194/42 o powierzchni 0.1213 ha, cena wywoławcza 71.000,00 zł,
- działka nr 1194/43 o powierzchni 0.1137 ha, cena wywoławcza 67.000,00 zł,
z przeznaczeniem pod zabudowę mieszkaniową jednorodzinną.
Pierwszy przetarg ustny nieograniczony, na zbycie w/w nieruchomości, odbył się 30.05.2019 r..
O wysokości postąpienia decydują uczestnicy przetargu, z tym, że postąpienie nie może wynosić mniej niż 1% ceny wywoławczej z zaokrągleniem w górę do pełnych dziesiątek złotych.
Do ustalonej w przetargu ceny sprzedaży nieruchomości, zgodnie z przepisami ustawy
z dnia 11.03.2004 r. o podatku od towarów i usług zostanie doliczony podatek VAT
w wysokości 23%.
Nieruchomości wolne są od ciężarów i długów oraz roszczeń osób trzecich.
Przetarg odbędzie się dnia 30 października 2019 roku w Urzędzie Miejskim w Człuchowie
(w sali posiedzeń nr 102), o godz. 1000 .
Warunkiem przystąpienia do przetargu jest wniesienie wadium w pieniądzu w wysokości 10% ceny wywoławczej nieruchomości będącej przedmiotem przetargu na konto Urzędu Miejskiego w Człuchowie – Bank Gospodarki Żywnościowej S.A. Oddział w Człuchowie nr 35203000451110000002286250 lub w kasie Urzędu Miejskiego w Człuchowie do dnia
23 października 2019 roku włącznie.
Wadium zwraca się niezwłocznie po zamknięciu lub odwołaniu przetargu, jednak nie później niż przed upływem 3 dni od dnia odwołania lub zamknięcia przetargu.
Wadium wpłacone przez osobę, która wygra przetarg, zaliczone zostanie na poczet ceny nabycia.
Jeżeli osoba ustalona jako nabywca nie przystąpi bez usprawiedliwienia w ustalonym przez organizatora przetargu miejscu i terminie do zawarcia umowy, organizator przetargu może odstąpić od zawarcia umowy, a wniesione wadium nie podlega zwrotowi.
Cena osiągnięta w przetargu stanowi cenę nabycia nieruchomości i płatna jest jednorazowo najpóźniej w dniu zawarcia umowy notarialnej.
Nabywca ponosi koszty sporządzenia umowy notarialnej oraz koszty sądowe.
Burmistrz Miasta zastrzega sobie prawo odwołania przetargu w uzasadnionych przypadkach, przy czym informacja o odwołaniu przetargu z uzasadnieniem podana zostanie do wiadomości
w formie zastosowanej dla ogłoszenia tego przetargu.
Dodatkowe informacje można uzyskać w Referacie Gospodarki Nieruchomościami i Rolnictwa Urzędu Miejskiego w Człuchowie – pokój nr 116 telefon (059) 83-42-291 wew. 312.

